







Terreno a venda em Loteamento Aberto - Localização privilegiada! Código: 910923
Pinheiro Machado - Santa Maria, RS
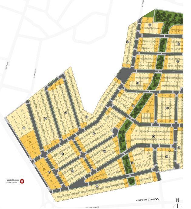
Condomínio: Residencial Alberto Schons
R$ 195.000,00
Excelente oportunidade para quem busca investir ou construir em uma região em pleno crescimento. Terreno situado em loteamento aberto, com ótima topografia e fácil acesso, localizado próximo ao Hospital Regional, garantindo praticidade, segurança e valorização constante. A área possui infraestrutura completa de ruas amplas, iluminação pública e um entorno tranquilo, com comércios, escolas e serviços essenciais a poucos minutos. Ideal para quem deseja morar bem ou expandir seu patrimônio com um imóvel de alto potencial de valorização. Diferenciais: Localização estratégica Região tranquila e bem desenvolvida Próximo ao Hospital Regional Fácil acesso às principais vias Ótima oportunidade de investimento Agende uma visita e conheça de perto esse excelente terreno!
Área
10 m²
Fundos
10 m²
Frente
33 m²
Direita
Condomínio *
Sob Consulta
IPTU *
Sob Consulta
Impostos e Transferência *
R$ 5.850
* Valores aproximados
ou

Beatriz Spibida
Corretora
CRECI: 37.549




















